Home Bedrijfspanden Borne – Grotestraat 190

Borne Grotestraat 190

  • 2022
marcel kon

Stel al jouw vragen in een gratis en vrijblijvend gesprek met één van onze adviseurs.

Plan een afspraak

Omschrijving

Nu te huur!

Moderne winkelruimte in het levendige centrum van Borne.

Binnenkort beschikbaar. Een unieke gelegenheid om u in Borne te vestigen. Deze in 2022 gebouwde en uitstekend afgewerkte winkelruimte ligt aan de rand van het wandel- winkelgebied van Borne en toch goed zichtbaar voor al het verkeer op de Grotestraat en kerkgangers.

Op de locatie waar vroeger bloemsierkunst La Fleur gevestigd was, zijn in 2021 tot 2022 twee geheel nieuwe winkels gebouwd. Dit in een complex met 6 nieuwe appartementen. De hierbij aangeboden winkelruimte is dus zo goed als nieuw en voldoet aan alle recente bouweisen. De huidige huurder, (een schoonheidssalon) stopt persoonlijke redenen met haar zaak in Borne. Ze heeft de locatie als zeer prettig ervaren.

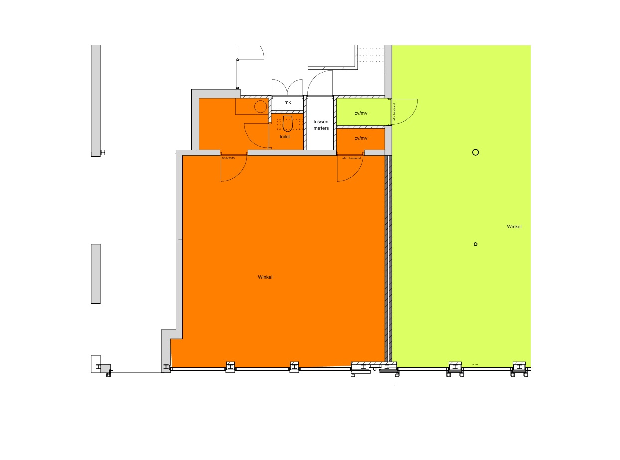
De winkelruimte is nagenoeg vierkant. Achterin de winkel zijn nog een privéruimte met keuken en toilet en berging gecreëerd. De Frontbreedte is circa 8 meter.

Bijzonderheden:
– Bouwjaar 2022
– Oppervlakte 73 M2
– Geheel geïsoleerd
– Frontbreedte circa 8 meter
– Zeer herkenbare locatie
– Vanaf juni 2026 beschikbaar
– Levering gas, water, elektra en koeling via verhuurder. (servicekosten € 300,00 per maand)
– Parkeren in Borne is gratis. (Blauwe Zone)
– Vrijdagavond koopavond.

Bij verhuur zal een huurovereenkomst model ROC 7:290 BW worden aangeboden. Looptijd 5 + 5 jaar. In de huurovereenkomst wordt een bankgarantie van 3 x de maandverplichting opgenomen.

Kenmerken

Overdracht

  • Huurprijs€ 1.250,- per maand
  • Aangeboden sinds 12 maart 2026
  • Status Beschikbaar
  • Aanvaarding In overleg

Bouw

  • Soort Bouw Bestaande bouw
  • Bouwjaar 2022

Oppervlakten

marcel kon

Investeren of beleggen?

Stel al jouw vragen in een gratis en vrijblijvend gesprek met één van onze adviseurs.

Plan een afspraak
wij zijn aangesloten bij funda.nl
wij zijn erkend NWWI kantoor
nvm kantoor marcel kon makelaarijd
marcel kon makelaarijd is vastgoed gecertificeerd
marcel kon makelaarijd is NRVY register-taxateur
marcel kon logo
Privacyoverzicht

Deze site maakt gebruik van cookies, zodat wij je de best mogelijke gebruikerservaring kunnen bieden. Cookie-informatie wordt opgeslagen in je browser en voert functies uit zoals het herkennen wanneer je terugkeert naar onze site en helpt ons team om te begrijpen welke delen van de site je het meest interessant en nuttig vindt.